0755-83706888

泡沫消火栓

产品中心 > 泡沫灭火设备 > 泡沫消火栓

泡沫消火栓

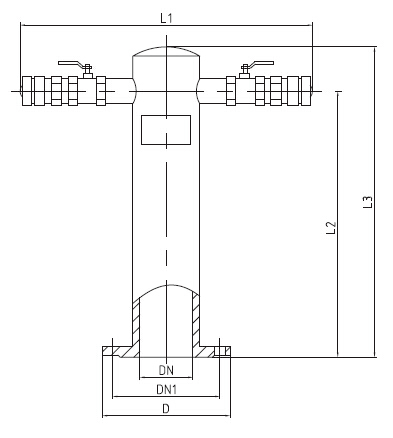
工作原理

    泡沫消火栓主要由法兰、筒体、球阀、内接、消防管牙及端盖组成。它分布安装在保护区内预设位置,法兰与供液管道连接,平时球阀关闭,端盖盖上。当发生火灾时,首先拧下端盖,然后把消防水带接上,再打开球阀向泡沫发生装置输送泡沫液,泡沫消火栓必须在规定的压力范围内使用。

 

外形尺寸