0755-83706888

PF系列高倍数泡沫产生器

产品中心 > 泡沫灭火设备 > PF系列高倍数泡沫产生器

PF系列高倍数泡沫产生器

高倍数泡沫产生器是高倍数泡沫灭火系统的主要设备之一。优点是发泡量大,适宜扑灭不同类型火灾。

 

工作原理

    用0.3~1.0MPa的压力泡沫混合液驱动水轮带动风轮旋转,混合液经过喷头把泡沫混合液以雾状形式喷向发泡网,在网的内表面形成一层薄膜,由风轮吹到网上的风,吹胀成大量的气泡,构成为高倍数泡沫,淹没或覆盖燃烧物体的表面。利用泡沫的遮断,冷却和窒息作用达到灭火的目的。在全淹没和局部应用高倍数泡沫灭火系统中,它固定在防护区内,达到灭火的目的。

 

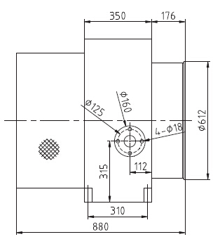
外形尺寸



技术参数


安装说明

1. 距离泡沫发生器空气进口端0.3m以内不应有遮挡物。
2. 在泡沫发生器的发泡网前方1m以内不应有妨碍泡沫喷放的障碍物。
3. 用在全淹没系统的泡沫发生器,安装高度应高于泡沫设计到达的高度。